| 物件5050181 |
高知市一宮しなね1丁目B号地 |
3160万円 |
|
土地面積 |
119.01u(36.0坪) |
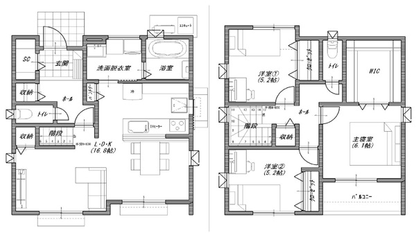
| 間取り |
2F)6.1洋・5.2洋・5.2洋・トイレ |
| |
1F)16.8LDK・浴室・脱衣所・トイレ |
| 延床面積 |
93.99u(28.43坪) |
| 現況 |
未完成 |
| 交通 |
神社前バス停5分 |
| 小・中学校校区 |
一宮小学校
一宮中学校 |
土地価格 980万円 建物価格 2180万円(税込)
改正省エネ基準適合住宅 省令準耐火対応 JAS規格集成材
建物保証20年 地盤保証20年 住宅設備延長保証10年
オール電化住宅仕様 アルミ樹脂複合サッシLOW−Eペアガラス
食器洗浄乾燥機、IHクッキングヒーター付システムキッチン
浴室暖房乾燥機 玄関収納 1・2階シャワートイレ
照明器具一式 カップボード カーテンレール 境界ブロック、フェンス
TVアンテナ地デジ 駐車場土間コン、砕石工事 |
 |
 |
|
お支払い例
3160万円借入 3年固定型 金利0.8%
返済期間40年の場合 月76,946円 ボーナス払い無し |
|