キシモト住宅トップページ 売買物件情報 高知市北部エリア
高知市の不動産の購入、売却、買い取はキシモト住宅へお気軽にご相談下さい。
高知市不動産売買情報 高知市一宮東町 中古一戸建住宅 ()キシモト住宅 
中古一戸建住宅(リノベーション住宅)
物件4060192 高知市一宮東町 2050万円(不課税)
土地面積  158.23u(47.86坪)
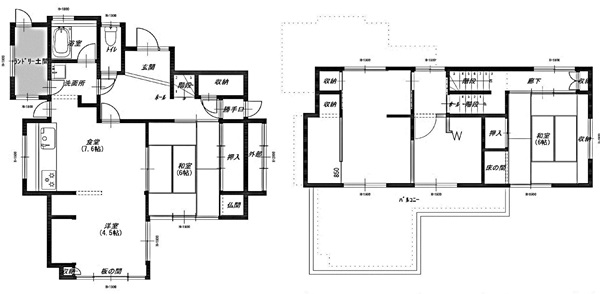
間取り 2F)6和・7.5洋・4.5洋
1F)4.5洋・7.6DK・6和・浴・洗・T
床面積 113.34u(34.28坪)
構造 木造2階建
現況 空家
築年数 昭和48年6月築
交通 一宮東門バス停歩7分 
小・中学校校区 一宮東小学校
一宮中学校
リノベーション住宅
水廻(トイレ・お風呂・洗面化粧台)
フローリング(リビング・居室)・クロス全面・畳
外部塗装(屋根・外壁・バルコニー)
お問いお待ちしております合わせ
 お支払い例 2050万円借入 10年固定型 0.92%
40年払い ボーナス払無 月々51,045円
 
 
 
 
ローンシュミレーションはこちらから
四国銀行 高知銀行 四国労金 JAバンク高知
有限会社 キシモト住宅
 物件のお問合わせ・ご案内のご予約はTEL088(805)0880(有)キシモト住宅へ
キシモト住宅トップ画面へ          掲載物件のお問合せ