| 物件№4081361 |
高知市鴨部2丁目 |
3710万円(税込) |
|
土地面積 |
132.15㎡(39.97坪) |
|
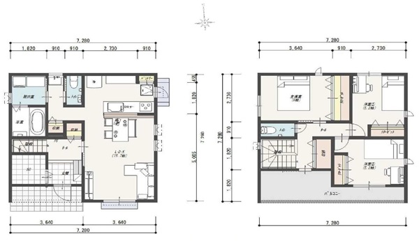
間取り |
2F)6洋・5.2洋・5.2洋・T |
|
|
1F)15.7LDK・トイレ・浴 |
|
延床面積 |
92.75㎡(28.06坪) |
|
現況 |
未着工 |
|
交通 |
西高校バス停歩3分 |
|
小・中学校校区 |
鴨部小学校
西部中学校 |
土地価格 1320万円
建物価格 2390万円税込
ZEH住宅水準の断熱性能、耐震等級3、省令準耐火仕様
建物20年、地盤20年保証、オール電化住宅仕様
IHクッキングヒーター、食器洗浄乾燥機、浴室暖房乾燥機
玄関収納、シャワートイレ、照明器具一式、カップボード、カーテンレール
境界ブロック、フェンス、駐車場土間コン、砕石、TVアンテナ、エコキュート370L |
お支払い例
3710万円借入 10年固定型 金利1.08%
返済期間50年の場合 月々80,024円 ボーナス払い無し |
 |
 |
 |
|