| 新築一戸建住宅 |
| 物件2081471 |
高知市朝倉本町二丁目 |
3580万円(税込) |
|
土地面積 |
131.65u(39.82坪) |
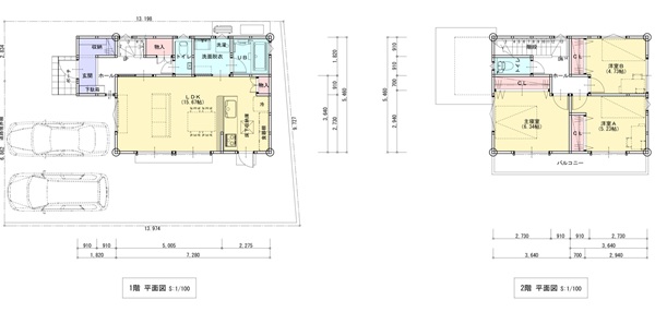
| 間取り |
2F)6洋・5.3洋・4.7洋・トイレ |
|
1F)16LDK・洗面・浴室・トイレ |
| 延床面積 |
84.45u(25.54坪) |
| 現況 |
完成済 |
| 築年数 |
|
| 交通 |
北城山バス停歩5分 |
| 小・中学校校区 |
朝倉小学校
朝倉中学校 |
省令準耐火仕様 建物保証20年 地盤保証20年
フラット35S対応 オール電化住宅仕様 エコキュート370L 全室ペアガラス、食器洗乾燥機、IHクッキングヒーター 浴室暖房乾燥機ユニットバス、シャワートイレ(1階、2階)、玄関収納 照明器具、カップボード、カーテンレール、境界ブロック、フェンス工事
駐車場土間コン打、砕石入れ、TVアンテナ エコキュート460L
太陽光発電システム5.28KW EV・PHE充電用屋外コンセント
お問い合わせお待ちしております
|
お支払い例 3580万円借入 10年固定型 金利1.08%
返済期間50年の場合 月々77,220円 ボーナス払い無し |
|
|
|
 |
|
 |
|
|
 |
| ローンシュミレーションはこちらから |
|
|
 |
| 物件のお問合わせ・ご案内のご予約はTEL088(805)0880(有)キシモト住宅へ |
| キシモト住宅トップ画面へ 掲載物件のお問合せ |
|