キシモト住宅トップページ 売買物件情報 高知市西部エリア
高知市の不動産購入、売却、買取りの相談は(有)キシモト住宅へ
高知市不動産売買情報 高知市神田 中古一戸建住宅 ()キシモト住宅 
中古一戸建住宅
物件№0041652 高知市神田 750万円(不課)
土地面積  114.77㎡(34.71坪)
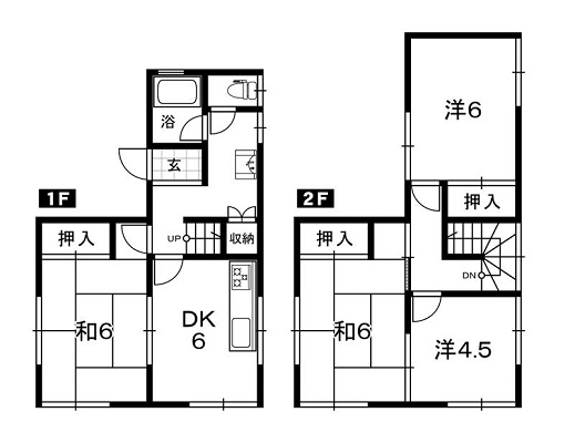
間取り 2F)6和・4.5洋・6洋
  1F)6DK・6和
構造 木造2階建
延床面積 85.8㎡(25.95坪)
現況 所有者居住中
築年数 1977年10月築
交通 船岡団地バス停 歩10分
小・中学校校区 鴨田小学校
西部中学校

オール電化、軽量鉄骨積水ハウスの家です
令和6年8月畳新規交換済。新しいエアコン2台付
お問い合わせお待ちしております
 
 お支払い例
750万円借入 3年固定型 金利0.8%
返済期間40年の場合 月々18,262円 ボーナス払い無し



 

 
ローンシュミレーションはこちらから
四国銀行 高知銀行 四国労金 JAバンク高知
有限会社 キシモト住宅
物件のお問合わせ・ご案内のご予約はTEL088(805)0880(有)キシモト住宅へ
キシモト住宅トップ画面へ          掲載物件のお問合せ