キシモト住宅トップページ 買物件情報 高知市北部エリア
高知市の不動産の購入、売却、買取りはキシモト住宅へご相談下さい。
高知市不動産売買情報 高知市西秦泉寺 新築一戸建住宅 ()キシモト住宅
新築一戸建住宅
物件1040401 高知市西秦泉寺 3670万円(税込)
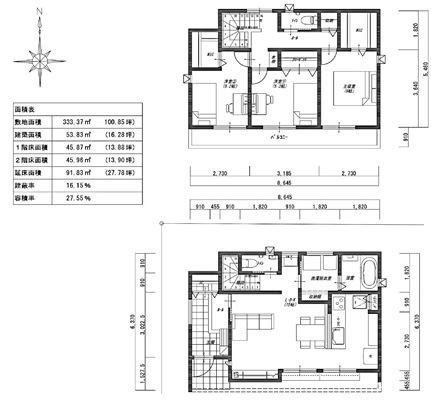
土地面積  166.68u(50.42坪)
間取り 2)5.2洋・5.2洋・6洋・トイレ
1)15LDK・洗面・浴室・トイレ
延床面積 91.83u(27.78坪)
現況 未着工
交通 王子バス停歩4分 
小・中学校校区 秦小学校
ZEC住宅水準の断熱性能
省令準耐火仕様、住宅瑕疵保証20年・地盤保証20年・オール電化住宅
全室ペアガラス・食器洗浄乾燥j機・IHクッキッグヒーター・シャワートイレ
照明器具・カップボード・カーテンレール・境界ブロック、フェンス
駐車場土間コンクリート・砕石入れ・エコキュート370L
土地 1350万円
建物 2320万円
ローンシュミレーションはこちらから
四国銀行 高知銀行 ろうきん JA高知市
有限会社 キシモト住宅
 物件のお問合わせ・ご案内のご予約はTEL088(805)0880(有)キシモト住宅へ
キシモト住宅トップ画面へ          掲載物件のお問合せ