| 物件№5050421 |
高知市薊野西町1丁目 |
3280万円(税込) |
|
土地面積 |
107.92㎡(32.64坪) |
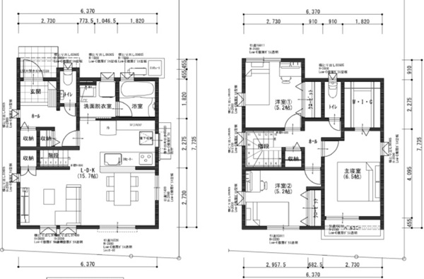
| 間取り |
2F)5.2洋・5.2洋・6.5洋・3CL・T |
|
1F)15.7LDK・洗面・浴室・トイレ |
| 延床面積 |
88.59㎡(26.79坪) |
| 現況 |
完成済 |
| 交通 |
東谷川橋東電停歩6分 |
| 小・中学校校区 |
泉野小学校
一宮中学校 |
建築確認 第R05-95号
改正省エネ基準適合
省令準耐火対応、JAS規格集成材、オール電化住宅仕様
住宅瑕疵保証20年・地盤保証20年・住宅設備延長保証10年 全室ペアガラス、食器洗乾燥機、IHクッキングヒーター 浴室暖房乾燥機、玄関収納、シャワートイレ(1階、2階)
カーテンレール |
お支払い例
3280万円借入 3年固定型 金利0.8%(融資手数料別)
返済期間40年の場合 月々79,868円 ボーナス払い無し |
 |
 |
|
|
 |
|