キシモト住宅トップページ 売買物件情報 高知市北部エリア
高知の不動産の購入、売却、買取りはキシモト住宅へお気軽にご相談下さい。
高知市不動産売買情報 高知市中万々 売店舗 (有)キシモト住宅
売店舗
物件№2080653 高知市中万々 5500万円(非課税)
土地面積  193.47㎡(58.52坪)
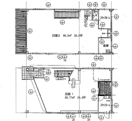
建物 2階)86㎡
  1階)80.77㎡
延床面積 181.39㎡(54.87坪) 
築年月日 2003年築 
構造 鉄骨造2階建 
用途地域 近隣商業地域
交通 宗安寺分岐バス停歩1分
小・中学校校区
万々商店街通り沿い、立地良いですです。
現在は美容室営業中です。
理美容系のお店をお探しの方は相談になりますが
使える設備もあって当初の経費節約出来ます。
理美容系店舗はもちろん物品販売店舗、事務所、飲食店等々
いろんな業種に良い立地です

お問い合わせお待ちしております
 
 ローンシュミレーションはこちらから
四国銀行 高知銀行 四国労金 JAバンク高知
有限会社 キシモト住宅
物件のお問合わせ・ご案内のご予約はTEL088(805)0880(有)キシモト住宅へ
キシモト住宅トップ画面へ          掲載物件のお問合せ