キシモト住宅トップページ 売買物件情報 高知市北部エリア
高知市の不動産の購入、売却、買取りは高知市神田のキシモト住宅へお気軽にご相談下さい。
高知市不動産売買情報 新築一戸建住宅 高知市北八反町 (有)キシモト住宅
新築一戸建住宅
 物件3030661 高知市北八反町 東棟 4280万円(税込)
土地面積 165.3u(50坪)
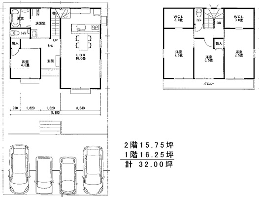
間取り 2F)7.5洋・3WCL・5.5洋・7.5洋・3WCL・T
  1F)16LDK・4.5和・洗面・浴室・T
  延床面積 105.78u(32坪)
  現況 未着工(プラン例)
  交通 JR円行寺駅徒歩8分
  小・中学校校区 小高坂小学校
城北中学校
建築プラン例 土地50坪 2150万円 水道分担金32万円
建物 木造2階建 延べ床32坪 4LDK 2098万円(税込)

省令準耐火仕様
浴室暖房換気乾燥機ユニットバス
住宅瑕疵保証10年
地盤保証20年
閑静な住宅地

お問い合わせお待ちしております
 お支払い例 4280万円借入 3年固定型 金利0.8%
返済期間40年の場合 月々104,218円 ボーナス払い無し
 
 
 
ローンシュミレーションはこちらから 
四国銀行 高知銀行 四国ろうきん 高知市農協
 有限会社 キシモト住宅
物件のお問合わせ・ご案内のご予約はTEL088(805)0880(有)キシモト住宅へ
 キシモト住宅トップ画面へ          掲載物件のお問合せ