![]() |
|||||||||||||||||||||||||||
|---|---|---|---|---|---|---|---|---|---|---|---|---|---|---|---|---|---|---|---|---|---|---|---|---|---|---|---|
| 高知市不動産売買情報 高知市長尾山 売土地 (有)キシモト住宅 | |||||||||||||||||||||||||||
|
|||||||||||||||||||||||||||
![]() |
|||||||||||||||||||||||||||
|
|||||||||||||||||||||||||||
|
|||||||||||||||||||||||||||
![]() |
|||||||||||||||||||||||||||
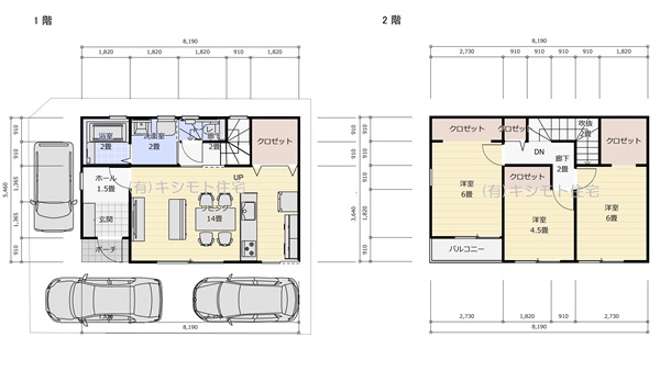
| 建物プラン 木造2階建 85.29㎡(25.75坪) 3LDK 建物価格 2050万円(税込) |
|||||||||||||||||||||||||||
![]() |
|||||||||||||||||||||||||||
|
|||||||||||||||||||||||||||
| ローンシュミレーションはこちらから | |||||||||||||||||||||||||||
| 物件のお問合わせ・ご案内のご予約はTEL088(805)0880(有)キシモト住宅へ | |||||||||||||||||||||||||||
| キシモト住宅トップ画面へ 掲載物件のお問合せ | |||||||||||||||||||||||||||